

Back to Plans
Raised*
Facade options
1 of 3
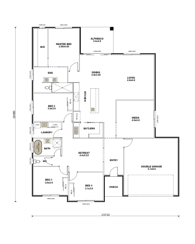
Hayman 244
Standard
Bedrooms4
Bathrooms2
Garages2
Living3
Square Meters
244.26 m²
26.2 squares
Dimensions
15.71m wide x 18.68m deep
*Min. block width: 19.71m


Facade options
1 of 3
Standard
Square Meters
244.26 m²
26.2 squares
Dimensions
15.71m wide x 18.68m deep
*Min. block width: 19.71m