

Back to Plans
Hamptons*
Facade options
1 of 12
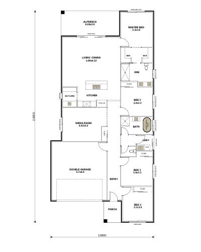
Endeavour 210
Standard
Bedrooms4
Bathrooms2
Garages2
Living2
Square Meters
210.56 m²
22.6 squares
Dimensions
10.8m wide x 22m deep
*Min. block width: 12m


Facade options
1 of 12
Standard
Square Meters
210.56 m²
22.6 squares
Dimensions
10.8m wide x 22m deep
*Min. block width: 12m