
Back to Plans
Modern 2*
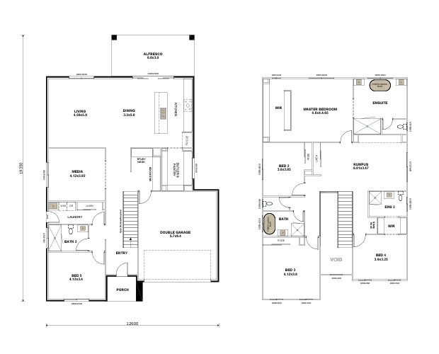
Moreton 362
Standard
Bedrooms5
Bathrooms4
Garages2
Living3
Square Meters
362.82 m²
39 squares
Dimensions
12.6m wide x 19.35m deep
*Min. block width: 13.8m
About This Plan
Moreton 362 is a stunning contemporary design that combines elegance with functionality. With 4 spacious bedrooms and 3 well-appointed bathrooms, this home offers ample space for family living and entertaining.
*Please note that the minimum block width of 13.8m is based on a 1m setback to wall and garage setback of 200mm and may vary based on the specific site conditions and local building codes.
*Facades shown are representational only and may not match floor plan exactly. Typically included base price facade is "Modern" style (Hipped Roof)
Key Features
- 1Open-concept living, dining, and kitchen area
- 2Luxurious master suite with ensuite and walk-in closet
- 3Gourmet kitchen with premium appliances and butler's pantry


